Mieszkanie na sprzedaż Rypin

3 pokoje
46.77 m²
8 582,87 zł/m2
parter
MDS-MS-5492
Oblicz ratę kredytu

401 421 zł

Mieszkanie na sprzedaż
Nowa oferta

Szczegóły oferty

Symbol oferty MDS-MS-5492
Powierzchnia 46,77 m²
Powierzchnia balkonów/tarasów 9,84 m²
Liczba pokoi 3
Rodzaj budynku blok
Piętro parter
Liczba pięter w budynku 3
Garaż garaż podziemny
Stan lokalu deweloperski
Okna PCV 3 szyby, ciepły montaż
Instalacje nowe
Liczba tarasów 1
Rok budowy 2022
Widok na inne budynki
Woda tak
Otoczenie centrum miasta
Ogrzewanie miejskie
Winda tak
Tarasy taras
Usytuowanie jednostronne
Pomieszczenia
Powierzchnia pokoi 17,08 / 10,42 / 7,05 m2
Podłogi pokoi wylewka betonowa
Typ kuchni aneks kuchenny
Rodzaj kuchni aneks kuchenny - połączony z salonem
Podłoga kuchni wylewka betonowa
Typ łazienki razem z wc
Liczba łazienek 1
Powierzchnia łazienki [m2] 5,60 m2
Glazura łazienki bez glazury
Podłoga łazienki wylewka betonowa
Liczba przedpokoi 1
Powierzchnia przedpokoi 6,62 m2
Podłoga przedpokoi wylewka betonowa
Iwona Ślip

Iwona Ślip

doradca ds. nieruchomości

Napisz wiadomość 101 Ofert

Opis nieruchomości

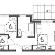
3 POKOJOWE MIESZKANIE Z TARASEM
- stan deweloperski-


Oferujemy do sprzedaży mieszkanie w nowo wybudowanym 32 lokalowym budynku wielorodzinnym, w którym dostępne są mieszkania o zróżnicowanych metrażach od 27m2 do 57m2 , każde zaprojektowane z myślą o łatwej i funkcjonalnej aranżacji. Wszystkie wyposażone w balkon, loggię lub własny ogródek, zapewniający dodatkową przestrzeń do relaksu.

 Poza ergonomicznymi mieszkaniami, w inwestycji zaproponowano także cichobieżne windy skomunikowane z garażami podziemnymi. Aby zapewnić mieszkańcom pełen komfort, miejsca parkingowe będą dostępne także na terenie osiedla.

Oferta dotyczy 3 pokojowego mieszkania położonego na parterze 3 piętrowego budynku. Lokal o powierzchni  46,77m2, z tarasem o powierzchni 9,84m2.


POMIESZCZENIA:


- pokój z aneksem kuchennym 17,08 m2
- pokój 10,42 m2
- pokój  7,05 m2
- łazienka 5,60 m2
- hol 6,62 m2

- komórka lokatorska 2,26 m2 
(zlokalizowana na tym samym piętrze, na którym jest mieszkanie) 


KOMFORT MIESZKANIA

Zagospodarowanie przestrzeni przewiduje chodniki i dojścia do budynków, drogę wewnętrzną, dojazdową, plac manewrowy, stanowiska postojowe dla samochodów osobowych, ogrodzenie terenu, monitoring terenu zewnętrznego, hydranty naziemne oraz zieleń wokół budynków.


CENA - 401 421 zł 

Komórka lokatorska, miejsce garażowe i miejsce parkingowe stanowią dodatkowy koszt.

Komórka lokatorska - 10 000 zł

Miejsce parkingowe - 10 000 zł

Miejsce garażowe - 40 000 zł

Kontakt w sprawie oferty: tel. 730 070 246

Bezpłatnie pomagamy w uzyskaniu kredytu na zakup nieruchomości.

Kalkulatory

Kalkulator kredytowy

Wysokość raty

PLN
%

Kalkulator kosztów

Podatek od czynności cywilno-prawnych

Taksa notarialna
(opłata notarialna)

Wniosek o wpis do KW

VAT od prowizji
agencji nieruchomości

VAT od taksy notarialnej
(opłaty notarialnej)

Prowizja agencji nieruchomości

Wypisy aktu notarialnego

Razem

Uwaga: mogą wystąpić dodatkowe opłaty za założenie księgi wieczystej oraz ustanowienie hipoteki.

PLN
PLN
PLN
PLN
PLN
PLN
%
PLN

Podobne oferty

Bez prowizji

Mieszkanie na sprzedaż

Rypin

3 pokoje 51 m2 8 382,03 zł/m2
Bez prowizji
Nowa oferta

Mieszkanie na sprzedaż

Rypin

3 pokoje 42 m2 9 044,39 zł/m2
Nowa oferta

doradca ds. nieruchomości

Proszę wprowadzić poprawne imię i nazwisko
Proszę wprowadzić poprawny numer telefonu
Proszę wprowadzić poprawny adres e-mail
Proszę zaznaczyć wymagane zgody
Rozwiąż równanie:
23 8
Niepoprawny wynik